Tel: 905.660.1367

Sales

Auctions & Liquidations < Offshore & Construction Equipment from a Major Project < Lots < Offshore & Construction Equipment from a Major Project Lot 189-25219

Previous Lot Next Lot

Offshore & Construction Equipment from a Major Project

Description

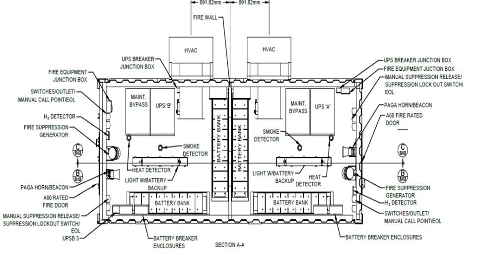
Uninterrupted Power System (UPS), 120/208V, 25kVA Battery Banks, Containerized


AUCTION INFORMATION
Industry:

Mining & Heavy Construction


Sale Date:

Oct 23, 2025


Sale Type:

Timed Online Auction


Inspection Date:

By appointment only


CONTACT FOR THIS AUCTION
Contact:

Terrance Jacobs


Phone:

(905) 660-1367


Email:

tjacobs@managingyourassets.com


Lot Details
Lot Number:

189-25219


Lot Location:

Mount Pearl, Newfoundland


Sign Up For Email Auction Alerts

Learn More About Our Appraisal Seminar

back
to top